Client: Coombe Castle
Value: £62k
Cre8tive was asked to help carry out an office fitting project for Coombe Castle,who were moving from Corsham to Melksham. The work on this started 6 months ago, once the customer had in mind what they wanted to do, Cre8tive carried out a detailed plan of the building. This involved taking accurate measurements of all of the inside and outside space, in particular determining where all of the cabling went.
Cre8tive then designed the position of the new canteen and offices that were required on the existing mezzanine floor. The only problem was that the roof height was over 4 meters high, and Building Regulations says that you have to have 1 hour fire separation between offices and warehouse, so we devised a specification to meet this.
Other requirements for office fitting included spaces that need ventilation and heating, so Cre8tive had to extended the existing heating system, and fit a VAMÂ unit within the ceiling void to take air from the outside to the inside.
The office fitting project included data cabling the existing offices as well as the new, providing all electrical, flooring, kitchen, decorations and suspended ceiling for the space.
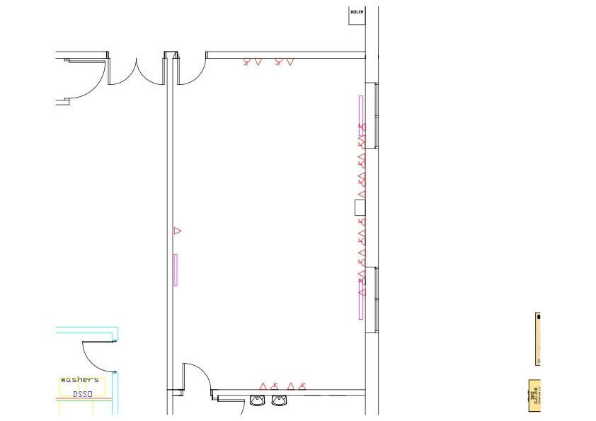
Drawing and specification work.
We produced many drawings for each of the areas that we had to work on. This included work to the front offices, so they needed power and data, lighting, repairs to the suspended ceiling and new carpet. Other areas included:
- Repairing some of the panels in the toilets.
- Stripping out the existing kitchen and canteen, converting into a new Sales office.
- Providing all of the plumbing requirements for the clean room area downstairs.
- Building new offices and canteen on top of the mezzanine floor which had to meet building regulations.
- New heating and ventilation.
- New comms rack.
- Painting much of the outside block walls white.
- Building a couple of offices on the shop floor, again these had to be 1 hour fire rated.
Existing building photos before work
Construction photos
Completion photographs
Project Management..
We have many ideas on how to make the best use of space, and we are seeing offices and talking to customers all of the time. Over the years we have seen many projects and often have to work to a budget. What we do is get the space working right first and then focus on the budget. In this case the budget was very tight so we ended up using a very cheap carpet which did not affect the design of the office, and just brought it into the manageable level for the customer. This project was leased over 3 years. Please contact us for further information about leasing and financing.
01380 73 88 44 or email us at [email protected]















































