Categories
All Project Categories Office Refurbishments Partitioning Toilet Refurbishment

Office Fit Out and Design work in Melksham

Client: Oakhouse Foods
Value: £100k

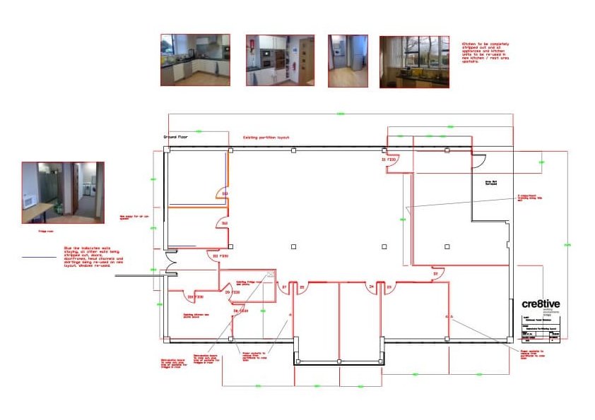
The office fit out project for Oakhouse foods in Melksham involved initial space planning and design, through to stripping out and refurbishing the office space. The project included: partitioning, new air conditioning to server room, new kitchen and flooring, building of a shower room, decoration and office furniture

Design Work

Once we had a good look at the current space and taken a brief from the customer, then we draw it. We use Autocad, and we first have to identify exactly what is in the current space which will include the existing lighting, electrical and air conditioning aspects, as well as the walls and other items in the space. In coming up with a new design we first look to see what the customer wants and then try to squeeze it in. We always draw technical drawings which allows our suppliers to cost items, but sometimes customers can’t visualise what something may look like. We therefore organise some visuals to be produced which help the whole process in getting the project approved.

Existing Photographs.

Construction Photographs.

Finished Photographs.

Why Demountable Partitions in Office Refurbishments?

  1. Demountable partitioning is tax efficient in that they are seen as movable items and so can be treated differently in writing down allowances in the accounts.
  2. We can also lease Demountable Partitioning as they are movable, this spreads the costs of having the work done as Demountable Partitions always cost more than customers think.
  3. Leasing of demountable partitioning is very tax efficient and Cre8tive can provide illustrations, please contact us for further information.
  4. Most landlords insist on demountable partitions being used for offices as it is much easier to take them out should the tenant renting the space leave for any reason. The benefit is that is saves making a huge amount of mess and destruction that would be need with a conventional stud and plasterboard constructed wall.

Not sure what to do?

Please give us a call and we can help with any aspect of interior office fit out, along with space planning and design work.
01380 73 88 44