Client: Zircon Software
Value: £23k
Suspended Ceiling and Alteration work
We completed this replacement suspended ceiling project for Zircon Software in Trowbridge who moved to new premises. The existing ceiling was very tired, so we produced a lighting scheme along with some drawings to present to the customer with the costing. We supplied new suspended ceilings and lighting throughout and also took out a couple of walls for them. The work carried out here is typical of what we call dilapidation work, in that the work is needed for someone moving in to be able to occupy it in a reasonable state.
The walls were also re-configured the kitchen by adding in a new doorway and serviced all of the air conditioning equipment in the space.
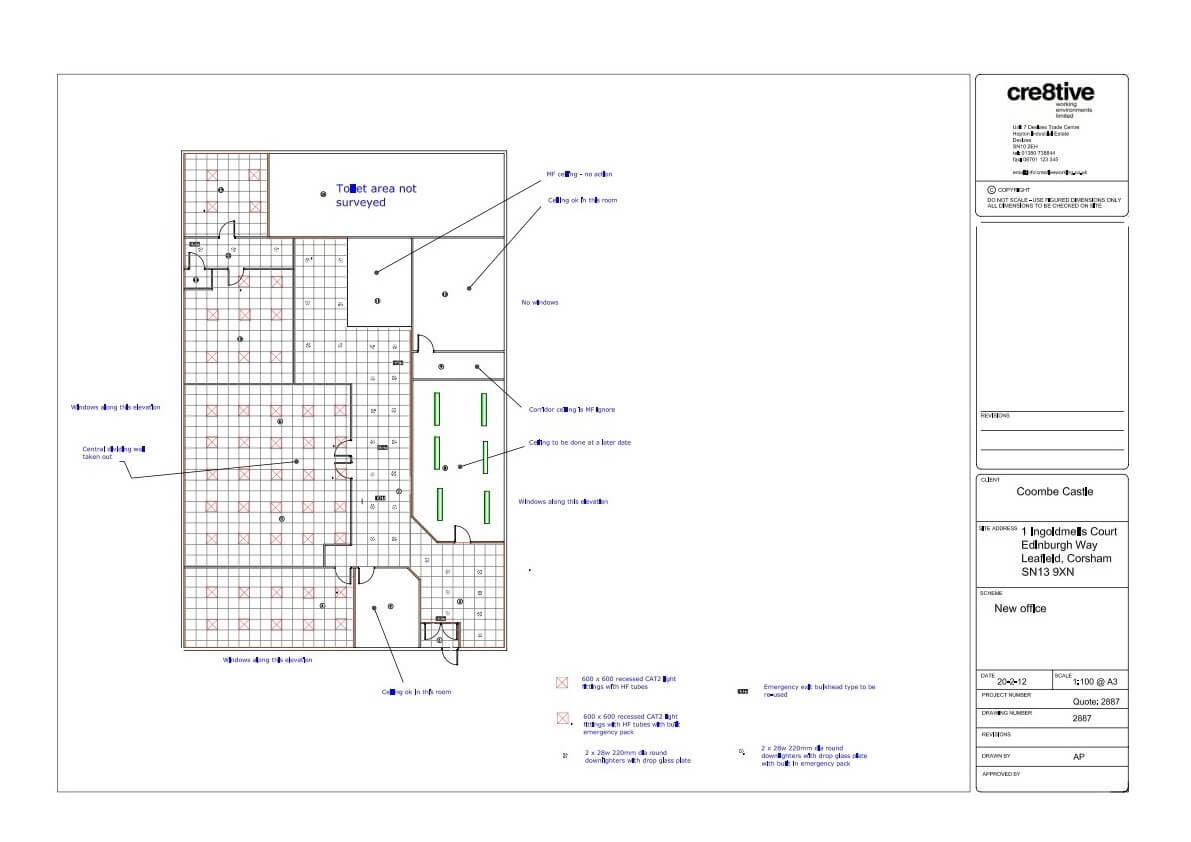
Existing suspended ceiling
Drawing work
One of the first jobs that we had to do was to measure the whole space and work out what other work needed to be done for the customer. We had to take out a partition wall, knock through another entrance into the kitchen which meant the kitchen worktop had to be cut and a doorway cut into the kitchen, as well as move an air conditioning unit. The lighting was poor so we did a lighting design to make sure the lighting levels were correct in each of the areas. The existing lighting used CAT2 louvres for the main corridor which was the wrong type of lighting, as CAT2 lights project light downwards and are designed for computers, so we fitted low voltage lights with drop glass plates which gave a much better spread of light in the space.
Construction and final photographs
Suspended Ceiling Projects
If you want to improve sound performance for a space, or want to hide some services, or have any questions about suspended ceiling types please give us a call on 01380 73 88 44






















