Client: Electric Bear Brewing Co.
Value: £18.5k
Cre8tive Interiors was commissioned by Electric Bear Brewing Co. to oversee a comprehensive refurbishment of their customer-facing facilities.
Following the successful launch of their brewery tours, the client sought to elevate the visitor experience by transforming the entrance lobby and restrooms into a more welcoming, brand-aligned environment.
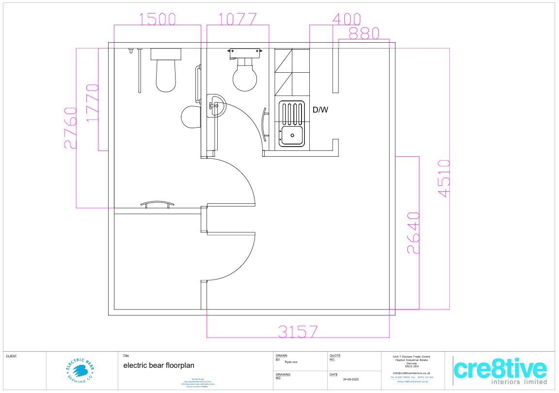
A key component of the brief involved a spatial challenge: reconfiguring a small, ‘makeshift’ tea point into a more functional, modern kitchenette.
Initial design
Form, Function, and Fermentation: A Brewery Refresh
Every successful commercial renovation begins with precision. For our latest project—a modern independent brewery—the goal was to balance a rugged, industrial aesthetic with high-performance utility.
Precision in the Planning
To ensure every square inch was utilized, we began with detailed CAD modeling. This allowed us to accurately map the entrance lobby, facilities, and kitchen areas, ensuring our material costing was as precise as our design. Within the kitchenette, spatial efficiency was the priority. By specifying a slimline dishwasher and a deep single-bowl sink, we managed to maximize the usable worktop surface without compromising on essential functionality.
Industrial Edge Meets Accessibility
The restroom refurbishments needed to reflect the brewery’s brand identity. We curated a moodboard that contrasted dark industrial hardware with clean, contemporary sanitaryware. Diversity and inclusion were also central to the brief; we integrated a dark grey Doc-M pack into the accessible facilities to ensure the aesthetic remained cohesive while meeting all regulatory standards.
A Bright First Impression
The reception area serves as the gateway to the brewery experience. To modernize the space, we focused on “lifting” the environment through new flooring and a high-reflectivity suspended ceiling. The result is a brighter, more inviting entrance that sets the tone for the quality of the craft beer waiting inside.
Existing Kitchen and Toilet
Project walkthrough
Phase 1: Site Preparation and Infrastructure
The project commenced with the complete decommissioning and strip-out of the existing facilities. To support the new kitchenette, we performed electrical chasing to ensure all power points were seamlessly integrated. Following the first-fix electrical work, all surfaces underwent thorough remediation—filling and making good to provide a flawless substrate for the final decorations.
Phase 2: Sanitaryware and Smart Concealment
In the restrooms, our focus was on clean lines and ease of maintenance.
-
Piping & Cabinetry: We installed bespoke boxing to conceal all pipework. This not only created a more streamlined, “high-end” aesthetic but also removed dust-traps, significantly improving hygiene standards and ease of cleaning.
-
The Specification: We specified modern close-coupled toilets with soft-close seats and full pedestal basins to maintain a minimalist look.
-
Accessibility: The DDA-compliant facility was fitted with a contemporary Doc-M pack featuring grey grab rails, ensuring full compliance without compromising the project’s neutral color palette.
Phase 3: Lighting and Ceiling Systems
To brighten the space, the dated ceiling was replaced with a modern suspended system. We utilized flat white tiles paired with high-output LED panels. This combination dramatically increased the ambient light levels while providing a clean, professional finish and improved energy efficiency.
Phase 4: Kitchenette Installation
The new kitchenette was designed to be both durable and stylish, reflecting the brewery’s industrial roots.
-
Cabinetry: A white gloss slab door was chosen for its reflective properties and modern feel.
-
Work surfaces: We paired the cabinetry with a concrete-effect worktop and matching backboard, providing a robust, industrial edge.
-
Integration: Despite the small footprint, we successfully integrated a dishwasher to ensure the space remained fully functional for the Electric Bear team
The Final Reveal:
A Seamless Blend of Style and Utility
The completed project at Electric Bear Brewing Co. is a testament to how thoughtful design can transform even the most utilitarian spaces into brand-aligned environments.
A Dynamic First Impression
The reception area has been completely revitalized. By combining fresh decoration with a new high-performance suspended ceiling and LED lighting, the space now feels open and energized. The standout feature is the industrial chevron-style flooring, which provides a striking visual link to the brewery’s craft-led identity while offering the durability required for a high-traffic visitor center.
The Kitchen: Ingenious Space-Saving
To maximize the footprint of the new kitchenette, we moved away from traditional swing doors. Instead, we installed a bespoke industrial roller shutter. This serves two critical purposes:
-
Spatial Efficiency: It eliminates the “door swing” radius, keeping the walkway clear.
-
Security: It allows the brewery to discreetly secure the staff area from the public during tours. Despite its compact size, the kitchen now offers ample storage, generous worktop space, and the high-spec addition of an integrated dishwasher.
Restrooms: Moody, Modern, and Maintenance-Friendly
The refurbished toilets strike the perfect balance between “warehouse chic” and clinical cleanliness.
-
Design Excellence: We created a sophisticated atmosphere using dark grey feature walls, complemented by matte-black accessories, radiators, and mirrors.
-
Engineered for Hygiene: By boxing in all pipework and installing commercial-grade safety vinyl flooring, we’ve ensured the facilities are as easy to maintain as they are to look at.
-
Atmosphere: Thanks to the carefully positioned LED lighting, the dark aesthetic feels premium and welcoming rather than dim, ensuring guests have a high-quality experience from start to finish.
The Verdict
By blending industrial textures with modern lighting and clever spatial planning, we’ve provided Electric Bear Brewing Co. with a facility that is ready to welcome the public. It’s a space that doesn’t just work better—it looks the part.
Kitchen or Toilet Refurbishment Projects ?
If you would like a kitchen and toilet refurbishment, please do give us a call on 01380 73 88 44, or email us at [email protected] and we would love to help.



























































































































