Categories
Air Conditioning All Project Categories Design Office Furniture Office Refurbishments Partitioning Projects Storage Walls Visuals

Complete Office Design and Fit Out Project in Swindon

Client: One Technologies
Value: £260k

We carried out an Office design and fit out fit out project for One Technologies Ltd in Swindon,Wiltshire. The project included creating ideas for the design, detail specification and documents, planning and then organising the work which was completed on time within budget.

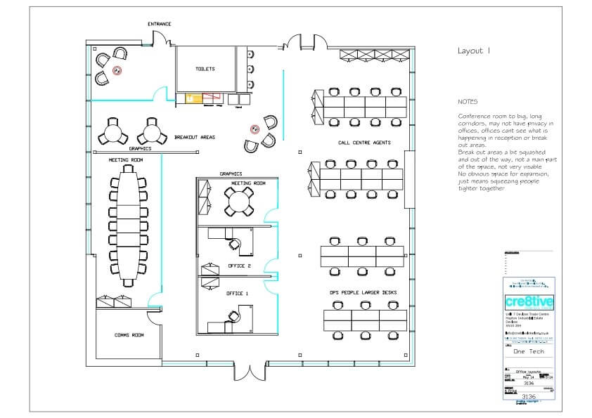
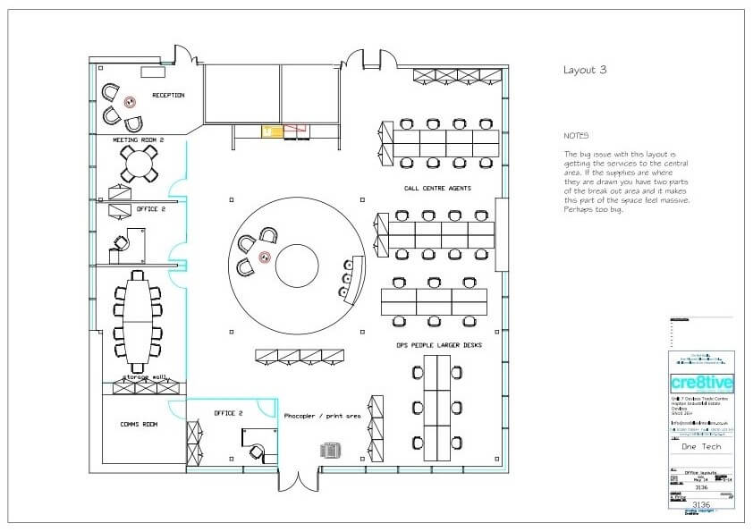
The customer is an American company that wanted to set up and office in the UK. They had a breakfast bar in their office in Dallas, we tried to replicate the way they work in the US so part of their culture of how they work comes across into the UK. The customer is a web based company and the new office will be receiving inbound calls so is basically a call center. The image of a phone box in the reception is intended to reflect this and is one reason why there is a  concentration of desks in space. The digital image that is printed on heavy textured wall covering. Desk footprint was important in getting the right numbers in, and we have designed this so they can increase the numbers easily, all of the future space planning has been done. You will see the grey wallpaper in the office is very textured to give some personality to the paper and help with sound performance.

The activities included Office Design, Project Management, CDM regulations, Building Regulations, contracts, stripping out work, demountable glass partitioning, decorations, design of a breakfast bar, supply and fit of all office furniture, air conditioning new and changes to existing, ventilation changes, lighting, electrical work, data cabling, supply and fitting of the communications cabinet, cctv, access control, audio visual equipment and connection, storage wall and flooring changes. We also supplied all of the office furniture, screens, cupboards, plants, graphics, chairs and monitor arms.

Preparation work.

Much of the initial time on the project was spent exploring different layouts and seeing how the space could work. Care was taken in seeing how the customer wanted to use the space to have an area where people could relax and have teas and coffees.

Design Visuals.

We have covered elsewhere in this website our view on visuals. Please click this link for more explanation as to the difference between drawing work, space planning and 3d visuals. As a large proportion of the cost of the project focused around the breakfast bar we felt creating visuals was really important. The breakfast bar being an essential part of the office design. The film taken of this project reinforces how much the finished build reflects the initial visuals we produced for the project. Although they are in the film clip, they can be seen below:

Specifications, contract and planning.

The next step was to provide much more detail in the the specifications in the form of written documents. We had a commercial contract drawn up, as well as produced a full build specification document detailing every aspect of the build. Due to the amounts of money involved £250k +, we produced a project plan which showed the phases of when payments were due to be made depending on when various parts of the project were delivered. The final document was a detailed Gantt chart showing project timelines, dates, slack periods, completion dates and contingencies. Also built in were times required for the American IT team to visit and have all of the computer equipment installed and configured.

Build Photographs.

As you can see from the photographs there was quite a bit to organise, in particular we had to follow the progress to a programme, as well as maintaining dates that had to fit in with the American IT team visiting the UK to install the server the programme had to be met for the financial reasons in order to maintain a steady flow of payments coming to us from the USA. The main office design and fit out project for us was only one small part in order to get the office up and working. The customers IT people only had 3 days to install all of the equipment, so all of the infrastructure cabling, power, air conditioning, cabinets and of course all of the security access controls and cameras had to be fully working before they came over to visit. They were bringing with them a special server built by Dell to handle the call volumes anticipated in the office and the server itself cost 7 figures.

Final photographs finished office.

We are very please with the final office design and fit out. If you have not seen the video in the first part of this page then you can also see it here by here by clicking this text..

Moving / expanding or have problems with your existing office space?

Many offices have problems with sound, problems with fitting enough people in, and may look dated and need reworking which is where we can help. From an initial brief as to what the problems are to the final completed office we can carry out everything that you need inside an office. In the project above we used demountable partitioning but using a special type of glass to enhance sound performance. The system was also a propriety demountable partition system called Komfort Polar. The glass wall was double glazed, with seamless glass joints for a smooth simple look.

Why Demountable Partitions in Office Refurbishments?

  1. Demountable partitions are tax efficient in that they are seen as movable items and so can be treated differently in writing down allowances in the accounts, we can also lease elements of office refurbishments. Anything that can be moved.
  2. We mainly lease Demountable Partitions as they are movable, this spreads the costs of having the work done as Demountable Partitions always cost more than customers think.
  3. Leasing of movable items is very tax efficient and Cre8tive can provide illustrations, please contact us for further information.
  4. Most landlords insist on demountable partitions in an office as it is much easier to take them out should the tenant renting the space leave for any reason. The benefit is that is saves making a huge amount of mess and destruction that would be need with a conventional stud and plasterboard constructed wall.

Not sure what to do?

Please give us a call and we can help with any aspect of interior office fit out, along with space planning and design work.

01380 73 88 44